【摘要】:結合GB51309-2018《消防應急照明和疏散指示系統技術標準》和工程案例,從系統形式、照度計算及燈具布置、供電容量、配電回路要求、設備選型及敷設等方面探討綜合管廊的管廊層和設備層的消防應急照明系統設計方案,使應急照明系統更加安全、合理。
【關鍵詞】:綜合管廊;應急照明系統;照度計算;燈具布置;集中電源;集中控制;供電容量;配電回路
0.引言
隨著經濟的快速發展和城市化進程的推進,市政地下空間管線越發的多樣和復雜,綜合管廊應運而生。綜合管廊作為全地下空間構筑物,防火分區較長,疏散通道復雜,當發生火災時,疏散困難,嚴重威脅檢修運維人員人身安全。合理地設計消防應急照明和疏散指示系統顯得尤為重要。下面將結合工程實際情況,簡析綜合管廊應急照明系統設計做法,供業內同行參考。
1.系統設計步驟
綜合管廊分為管廊層和設備層。管廊層即放置各種市政管線的隧道空間,內設疏散通道;設備層位于管廊層正上方,用于放置電氣、通風設備,其一般結合逃生口、進風口設置,并在管廊層和設備層同一位置垂直設置防火分隔;管廊防火區間一般不超過200m。
綜合管廊的消防應急照明系統設計包括:系統類型的選擇、消防應急照明燈具及疏散指示燈具的選擇、系統配電設計、系統控制設計等。主要設計分為以下幾個步驟:①確定系統架構及系統配置。②按消防應急照明照度要求進行照度模擬計算,結合綜合管廊功能特點確定燈具容量及布置方式。③確定疏散指示燈具布置原則。④確定供電及回路設置要求。⑤確定設備、線路、敷設等選型及要求。⑥確定系統控制要求。
2.系統形式
綜合管廊是將電力、通信、燃氣、供熱、給排水等各種工程管線集于一體的城市地下隧道空間。根據GB50838-2015《城市綜合管廊工程技術規范》第7.5.7條,干線、支線綜合管廊含電力電纜的艙室應設置火災自動報警系統。根據GB51309-2018《消防應急照明和疏散指示系統技術標準》第3.1.2條,設有消防控制室的消防應急照明系統應選擇集中控制型系統。由于管廊內應急照明及疏散指示燈數量較多,同時其內環境潮濕,分散設置自帶蓄電池燈具,不便于檢修,系統可靠性差,為便于運營檢修維護,一般采用集中電源集中控制型應急燈具。
綜合管廊應急照明用電負荷等級為二級負荷,一般由雙回市政電源供電。根據GB50016-2014《建筑設計防火規范》(2018年版)10.1.8條和GB 51309-2018第3.8.2條,應急照明系統應設置雙電源切換箱,由切換箱供電至專用集中電源箱,再由電源箱供電至各艙室應急照明燈具。燃氣艙和非燃氣艙應分別設置集中電源箱。
集中電源設置在管廊設備層,按照防火分區設置;應急照明控制器設置于綜合管廊監控室(或分控室)。典型綜合管廊應急照明系統示意圖詳見圖1.

圖1 管廊防火分區典型應急照明系統示意
綜合管廊高度一般均不超過8m,根據GB51309-2018第3.2.1條第4款,應急照明燈具應選擇A型燈具。
3.照度計算及燈具布置
以成都市東部新區東一線南延線綜合管廊為例,該管廊設計為四艙(如圖2所示),分別為綜合艙、高壓電力艙、輸水艙、燃氣艙。綜合艙凈尺寸為B(寬)×H(高)=3.0m×3.8m,高壓電力艙凈尺寸為B×H=2.8m×3.8m,輸水艙凈尺寸為B×H=4.2m×3.m,燃氣艙凈尺寸為B×H=1.8m×3.8m。管廊總長4.16km,共設26個防火分區(如圖3所示),3座地下變電所,并附設一座綜合管廊分控室。

圖2 管廊標準橫斷面

圖3 管廊典型防火分區平面
綜合管廊內各個艙室兩側一般均有管道、支架或支墩,其內凈高一般為3~4m。應急照明燈具及疏散指示燈具均安裝于艙室側壁或支架上,應急照明燈具和出口疏散指示燈具的安裝高度一般為2~2.5m;方向疏散指示燈具安裝高度一般<1m,也可采用管吊方式安裝在管廊頂部。消防應急燈具安裝見圖4。

圖4 管廊消防應急燈具布置橫斷面
3.1管廊層應急照明設計
成都市東部新區東一線南延線綜合管廊根據不同艙室,寬度為1.8~4.2m不等,高度均為3.8m,疏散通道為狹長型,按常規選擇了光通量為 900 lm、10 W 應急照明燈,按照 10 m 布置間距,模擬計算結果見表 1。
表1 模擬低照度計算結果

可以看出,按照新標準要求 10 m 間距布置燈具,常規的 10 W 應急燈能滿足 GB 50838 - 2015 對管廊內疏散應急照明低照度 5 lx 的要求。
3.2設備層應急照明設計
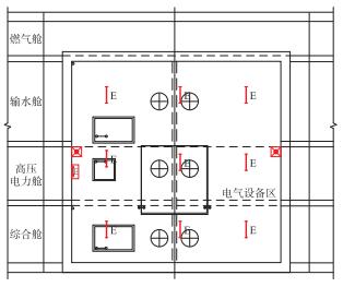
設備層主要放電氣設備及通風設備,其應急照明分為備用照明和消防應急照明。根據GB51309-2018第3.2.5條及第3.8.1條的要求,配電室等發生火災時仍需工作、值守的區域低照度值為1.0lx,同時按照正常照明100%照度值設計備用照明。設備層備用照明采用正常照明燈具,在火災時保持正常照度;對于消防應急照明,常規設備層建筑面積約100~120m²,采用光通量為 900 lm、10 W 應急照明燈,只需設置2盞應急照明燈具,低照度值即可>1. 0 lx。設備層應急照明布置見圖 5。

圖5 典型管廊設備層應急照明燈具布置平面
3.3疏散指示系統設計
根據GB 51309-2018第3.2.9條要求,當方向標志燈的標志面與疏散方向平行時,燈具的設置間距不應大于10m。根據GB51309-2018第3.2.1條第6款要求,管廊內出口疏散指示燈建議采用中型標志燈,方向標志燈采用小型標志燈。
管廊層內方向標志燈具采用小型標志燈,布置間距為10m。在疏散口、逃生口及人行出入口等設置疏散出口指示燈具,安裝于防火門上時,底邊距門框0.2m壁裝;安裝于逃生孔時,底邊距地2.5m管吊。
管廊設備層因其面積小(<120m2),單個房間的長寬均小于10m,一般不設置方向標志燈具;設備層朝向地面的疏散通道一般為人員逃生孔,需在逃生孔處安裝出口疏散指示燈具,可在逃生孔下壁裝或管吊安裝。
考慮管廊作為純地下構筑物,防火分區及逃生通道距離較長,具備雙向疏散的可能,為了使檢修人員明確所處的位置,并及時了解與疏散出口的間距,建議采用帶有米標的方向標志燈。管廊內消防應急燈具布置見圖6.

圖6 管廊應急照明及疏散指示燈具平面布置
4.系統供電容量
根據GB 51309-2018第3.3.8條的要求,集中電源額定輸出功率不應大于5kW,集中電源輸出回路不應超過8路;第3.3.6條要求,配接燈具的額定功率總和不應大于配電回路額定功率的80%,A型燈具配電回路的額定電流不應大于6A。GB 51348-2019《民用建筑電氣設計標準》第6.2.2條要求,EPS的額定輸出功率不應小于所連接的應急照明負荷總容量的1.3倍。
綜上,在滿負荷時,綜合管廊每套集中電源配接燈具額定容量上限為:S燈具≤S總回路×80%=36V×8×6×0.8≈1.38kW。每套集中電源的額定輸出容量上限為:S電源≤1.38×130%≈1.79kW。
按照常規綜合管廊防火分區間距不超過200m考慮,每個艙室設置20盞10W應急照明燈具及22盞1W疏散指示燈具,設備層設置2盞10W應急照明燈具及4盞1W疏散指示燈具。則非燃氣艙集中電源配接燈具容量為S=3×(20×10+22×1)+2×10+4×1=690W,集中電源的額定輸出容量為897W;燃氣艙集中電源配接燈具容量為S=1×(20×10+22×1)+2×10+4×1=246W,集中電源的額定輸出容量320W。單回路額定電流為:(10×10+2×10)/36=3.33A。根據各防火分區實際所接燈具情況,每套非燃氣集中電源容量建議為0.9kW,在人行出入口和車行出入口等特殊防火分區可相應大電源容量。
另外,根據GB50838-2015第7.4.1條第2款要求,集中應急照明電源持續供電時間不應小于60min。
5.配電回路要求
綜合管廊應急照明系統配電回路要求如下:
a.疏散燈具應按照防火分區、管廊層、設備層等為基本單元設置配電回路。
b.應急照明燈和疏散標志燈不宜接在同一回路出線上。
c.應急照明配電電壓推薦采用36V。
綜合管廊按照防火分區配電,供電回路較長,采用36V以下(如24V)電源供電,不易于控制線路末端壓降。回路帶載能力需考慮電源輸出額定電流、線纜直徑、末端壓降等因素的影響,考慮到工地現場實際安裝情況,電纜長度還需留有余量。根據國標圖集19D702-7《應急照明設計與安裝》第21頁,消防應急燈具端子處電壓偏差允許值可為額定電壓+20%,-20%。
按照供電半徑200m考慮,電纜電壓降百分數計算公式如下:
Δu%=2ρθ×P×L×100/(U2×S)
式中:Δu%——電壓降百分數;
ρθ——工作溫度θ℃時導線電阻率;
P——線路功率,W;
L——線路長度,m;
U——標稱電壓,V;
S——線路截面,mm2。
當配電電壓采用DC24V時,S≥2×0.0172×120×200×100/(24×24×20)=7.17mm2,需采用10mm2導線。當配電電壓采用DC36V時,S≥2×0.0172×120×200×100/(36×36×20)=3.19mm2,采用4mm2導線即可滿足要求。
綜上建議管廊應急照明配電電壓采用DC36V,配電線采用4mm2,單回路大容量不超過150W。
6.設備選型及敷設要求
a.應急照明回路饋出線纜選用電壓等級不低于300/500V銅芯耐火導線,控制通信線路采用耐火線纜或耐火光纖。
b.綜合管廊應急照明系統饋出線纜宜采用穿鋼管或封閉式金屬線槽明敷方式,鋼管和金屬線槽應涂刷防火涂料;當采用暗敷時,應穿鋼管敷設,并暗敷在不燃燒體結構內,保護層厚度應≥30mm。
c.控制通信回路可與電源線穿同一保護管或金屬線槽敷設,控制方式可采用鏈式總線通信,也可采用光纖通信。
d.綜合管廊應急照明系統設備應滿足地下環境的使用要求,防護等級不應低于IP54。
e.燃氣艙內應采用防爆應急照明燈具和電氣設備,并滿足相關的設備保護級別要求。
7.控制要求
綜合管廊應急照明系統采用集中控制型,應急照明控制器一般放置在管廊監控內的消防控制室中。正常情況下,綜合管廊內的應急照明燈具為關閉模式;在非火災狀態下,系統主電源斷電后,應急照明燈具轉入應急點亮模式;當火災確認后,應急照明控制器應能按預設邏輯手動、自動控制系統的應急啟動,根據火災發生位置啟動相應防火分區及相鄰防火分區內的應急照明燈具轉入應急點亮模式。
8.安科瑞應急疏散對應選型
綜合以上設計與要求,我司對應產品選型如下:



9.結束語
本文通過綜合管廊工程設計實例對應急照明設計進行了研究,提出了適用于綜合管廊的應急照明設計做法,為管廊應急照明設計提供參考。
參考文獻:
[1]安科瑞企業微電網設計與應用手冊2022.05版.
[2]GB50116-2014《建筑設計防火規范》[S].
[3]GB51348-2019《民用建筑電氣設計標準》[S].
[4]GB17945-2010《消防應急照明和疏散指示系統》[S].
[5]GB51309-2018《消防應急照明和疏散指示系統技術標準》[S].
[6]GB50058-2014《爆炸危險環境電力裝置設計規范》[S].
[7]GB50838-2015《城市綜合管廊工程技術規范》[S].
[8]劉麗萍. 地鐵車站設計如何合理執行新規范 —— 《消防應急照明及疏散指示系統技術標準》.
[9]杜成煌. 集中控制消防應急照明和疏散指示系統設計簡析.
[10]盧洲、陳峰、杜毅威.《綜合管廊消防應急照明系統設計簡析》
QQ咨詢
咨詢熱線
微信咨詢
